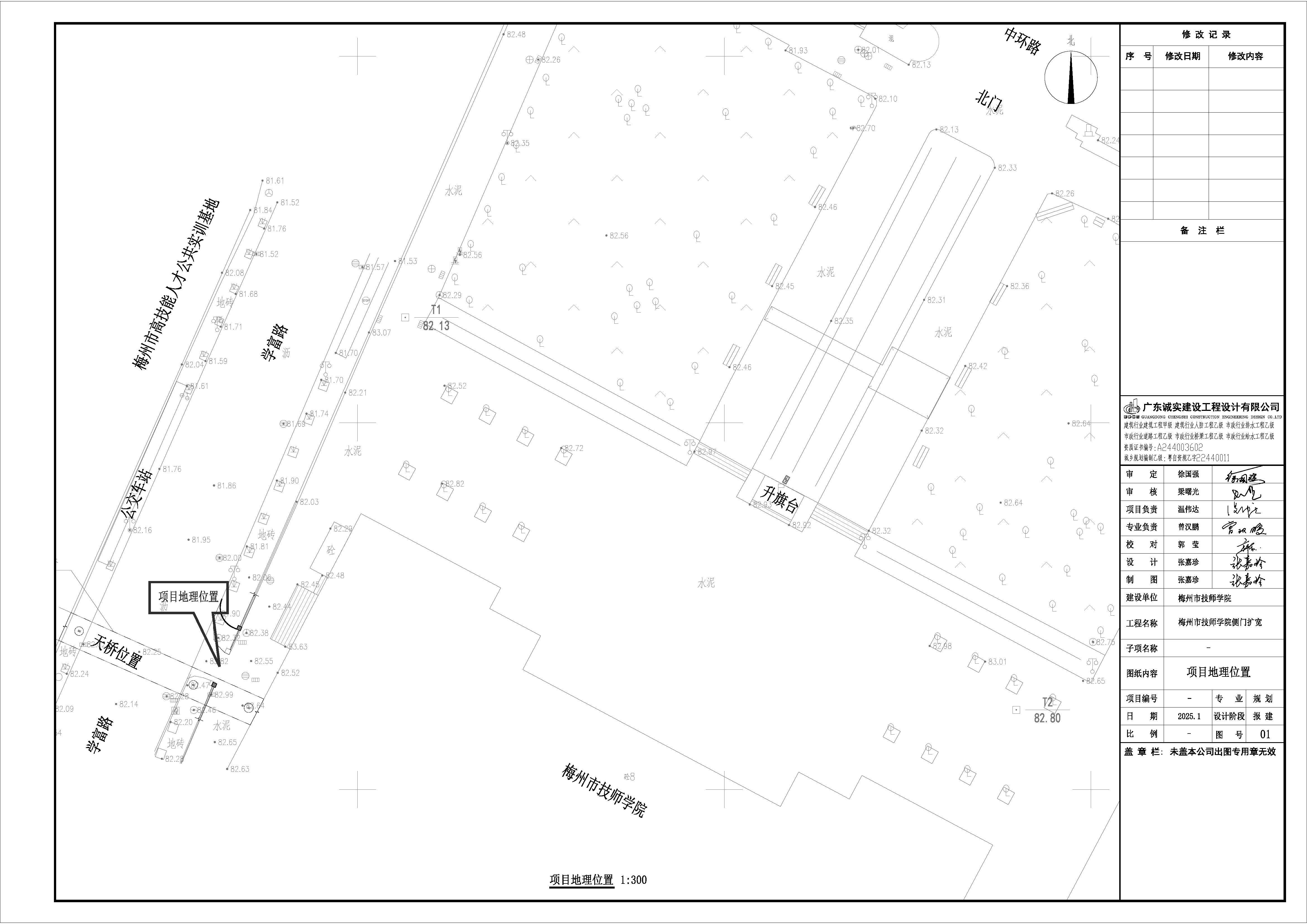
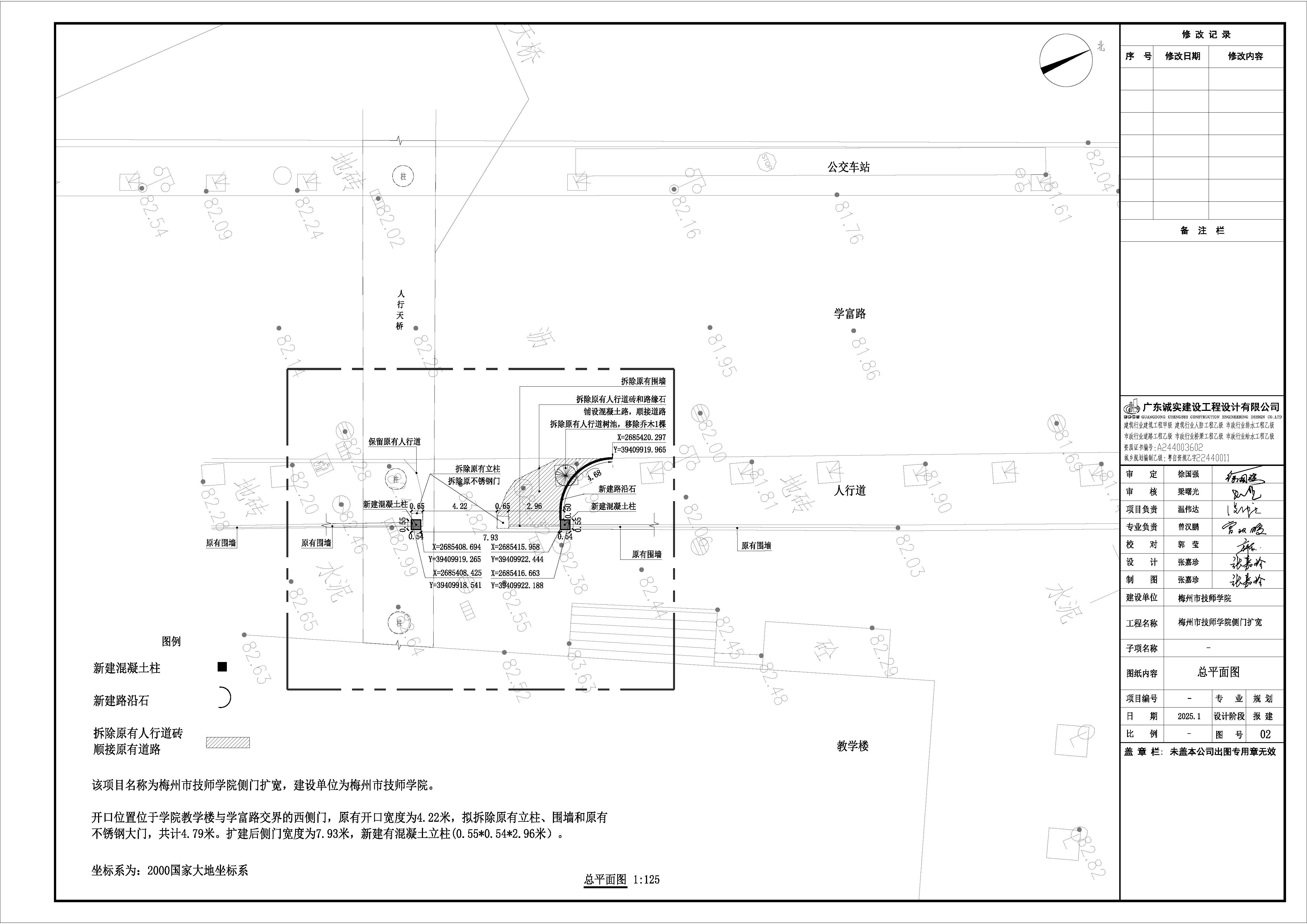
為保證學校門口交通安全,梅州市技師學院擬實施梅州市技師學院側門擴寬項目,開口寬度為7.93米,該項目位於梅江區學富路。如附圖所示。
按照《城鄉規劃法》的有關要求,在辦理《建設工程規劃許可證》前,應對項目進行批前公示,現將有關事項公示如下:
一、擬規劃方案具體詳見規劃許可批前公示圖。
二、公示期為10天,自2025年2月8日至2月18日。如對本規劃方案有異議,請在公示期內通過網上或信函、電話等方式反饋意見,有效的反饋意見必須包括反饋者的真實姓名、有效的聯係方式,並提供公示事項與其有利害關係的證明。逾期未提出異議,視作同意本方案。
公示地點:網上公示(網址://www.yyh998.com/zwgk/zfjg/szrzyj/)
經辦科室:市政規劃科
聯係電話:0753-2191306
E-mail:mzsszghk@meizhou.gov.cn
梅州市自然資源局
2025年2月8日

