頁麵:
    字體:
    對比度:
梅州市人民政府門戶網站 梅州市自然資源局 規劃公示 梅州市技師學院人行天橋工程批前公示
梅州市技師學院人行天橋工程批前公示
來源:本網   時間:2021-06-11 18:09:01   瀏覽:-
字號:

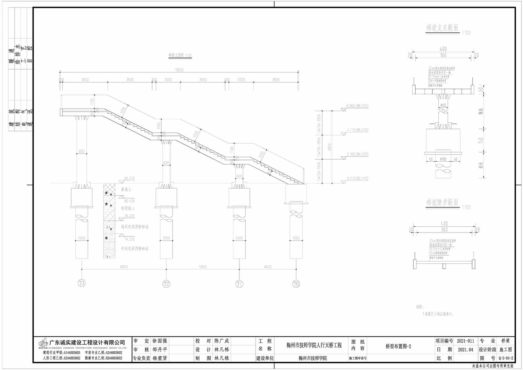
  為保障梅州市技師學院師生出行安全,梅州市技師學院擬實施梅州市技師學院人行天橋工程,項目連接學富路東西兩側的學院校區。橋梁全長約34.5米,寬3.5米。按照《城鄉規劃法》的有關要求,在辦理《建設工程規劃許可證》前,應對項目進行批前公示,現將有關事項公示如下:

  一、擬規劃方案具體詳見規劃許可批前公示圖。

  二、公示期為10天,自2021年6月11日至6月20日。如對本規劃方案有異議,請在公示期內通過網上或信函、電話等方式反饋意見,有效的反饋意見必須包括反饋者的真實姓名、有效的聯係方式,並提供公示事項與其有利害關係的證明。逾期未提出異議,視作同意本方案。

  公示地點:網上公示(網址://www.yyh998.com/zwgk/zfjg/szrzyj/

  經辦科室:市政規劃科

  聯係電話:0753-2191306

  E-mail:mzsszghk@meizhou.gov.cn

  梅州市自然資源局

  2021年6月11日

梅州市技師學院人行天橋工程批前公示圖1.jpg

梅州市技師學院人行天橋工程批前公示圖2.jpg

梅州市技師學院人行天橋工程批前公示圖3.jpg

梅州市技師學院人行天橋工程批前公示圖4_副本.jpg