
掌上梅州訊記者獲悉,梅州城市展覽館已於近日開始試運行,向市民、遊客免費開放。為做好疫情防控,保障遊客健康安全,營造良好的觀展環境,該館采取“錯峰、預約、限流”的方式實行實名製入館參觀管理。展館工作人員提醒,試運行期間,為科學引導參觀,預約規則會根據實際情況適時進行調整,擬前往參觀的市民可提前關注“梅州城市展覽館”公眾號,閱讀參觀須知,並在公眾號進行網上預約。
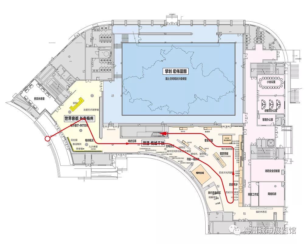
梅州城市展覽館位於梅州市江南新城劍英公園劍英湖南側,展覽館為三層展示空間,總建築麵積約7800平方米,其中布展麵積約3500平方米。館內布展內容以“世界客都·長壽梅州”為主題,分列“印象·世界客都”“溯源·梅城千秋”“謀劃·宏偉藍圖”“實踐·詳細規劃”“鄉愁·客家鄉情”五大篇章,充分運用傳統技巧和現代化多媒體技術,生動展示梅州文化底蘊和城市特色。

開放時間 周二至周日上午9:00至12:00,下午14:30至17:00。中午閉館設備維護。(國家法定節假日開館時間另行通知)開館日每天上午11:30後、下午16:30後停止檢票入館。 閉館時間 周一閉館(國家法定節假日除外)。 開放範圍 免費向社會公眾開放,12歲以下未成年人須由成年人陪護或集體組織方可入館參觀。 參觀方式 電子門票:請提前登錄“梅州城市展覽館”微信公眾號實名預約電子門票,每日可預約電子門票100張,約滿即止。 線下登記:請持本人有效身份證件,前往“服務台”實名登記(限年長者等特殊群體),每日限50人,登記時間為開放日09:00-17:00。 團體預約:疫情防控期間,暫停社會團體預約服務。 谘詢電話:0753-2383189(周二至周日09:00--17:00) 防控要求 1.根據相關工作指引,按限流75%的標準控製進館人數,將每日電子門票調整至100張,線下登記調整至50人,超過瞬時承載量將采取限客流措施。 2.請按預約時段入館參觀,提前出示健康碼和行程,並配合體溫檢測,如體溫≥37.3℃或有其他不適症狀,謝絕入館。 3.參觀期間請全程佩戴口罩,保持1米以上安全距離。 4.疫情防控期間,展廳觸摸類展項(能量單車、信息瀑布、互動飛屏)暫停開放與體驗。 5.請自覺遵守防控措施,如需幫助,請與現場工作人員聯係。 6.疫情防控期間,對拒不配合及擾亂秩序者,由工作人員協調公安部門依法處置。 7.以上規則與措施將根據防疫動態實時調整,請關注公眾號最新公告。 注意事項 1.請自覺接受安檢。嚴禁攜帶易燃、易爆、管製械具等危險物品和寵物、橫幅、標語、廣告牌、傳單等宣傳物品入館。 2.請自覺遵守館內提示類標識標牌,請勿在展館內飲食、吸煙、大聲喧嘩和觸摸裸露模型或展品,如有損壞,照價賠償。 3.重物、大件物品及容易損壞展館設備的物品請至前台谘詢辦理寄存,貴重物品請自行保管。 4.未經允許,請勿使用專業攝影攝像器材(包括自拍杆、三腳架、閃光燈)等在展廳內拍照。 5.為避免影響他人參觀,禁止任何團隊和個人在館內使用擴音設備進行非正式講解。 6.請自覺遵守展館的規章製度,文明有序參觀。如遇緊急突發情況,須聽從工作人員統一指揮。


